Характеристика бани и цены на разные комплектации
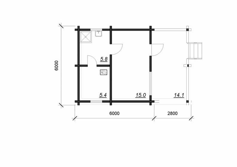
Проект 4 - Фото бани из бруса и планы этажей
Возможны любые изменения в проекте, материалах, видах отделки.
Строительство бань из бруса по проекту Проект 4 в Беларуси под ключ готовые комплекты бань цена стоимость.
Максимальная оценка: 10, Средняя оценка: 10 Всего отзывов: 256
Не является публичной офертой, цену, пожалуйста, уточняйте по телефонам.
8 (033) 687-46-80
Перейти в Viber
Перейти в WhatsApp






